Lot 64B-Lucas
Home Site Details
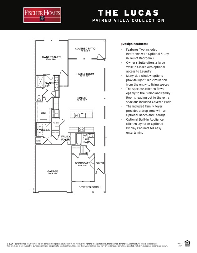
Welcome to The Villas at Longleaf Park in the Watersound Origins community, offering stylish paired/attached villas by Fischer Homes. The LUCAS plan, a beautifully designed 2-bedroom, 2-bathroom single-level home, features 1,418 sq. ft. of effortless living space and a 1.5-car garage. Step inside to an inviting open-concept layout with a modern kitchen, spacious dining area, and a bright living room that seamlessly flows into a private covered patio, perfect for outdoor relaxation. The primary suite overlooks the backyard and boasts a spa-like ensuite bathroom with a double vanity and a generous walk-in closet. This home includes standout features like luxury vinyl plank flooring throughout, 10' ceilings, upgraded countertops throughout, and more.
Estimated to be complete in January 2026.

